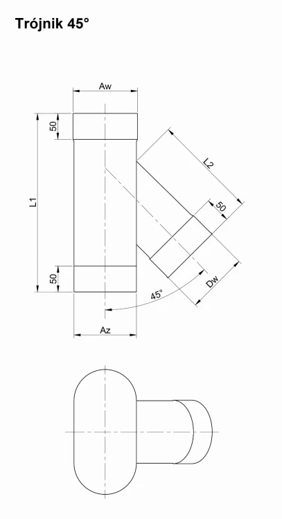
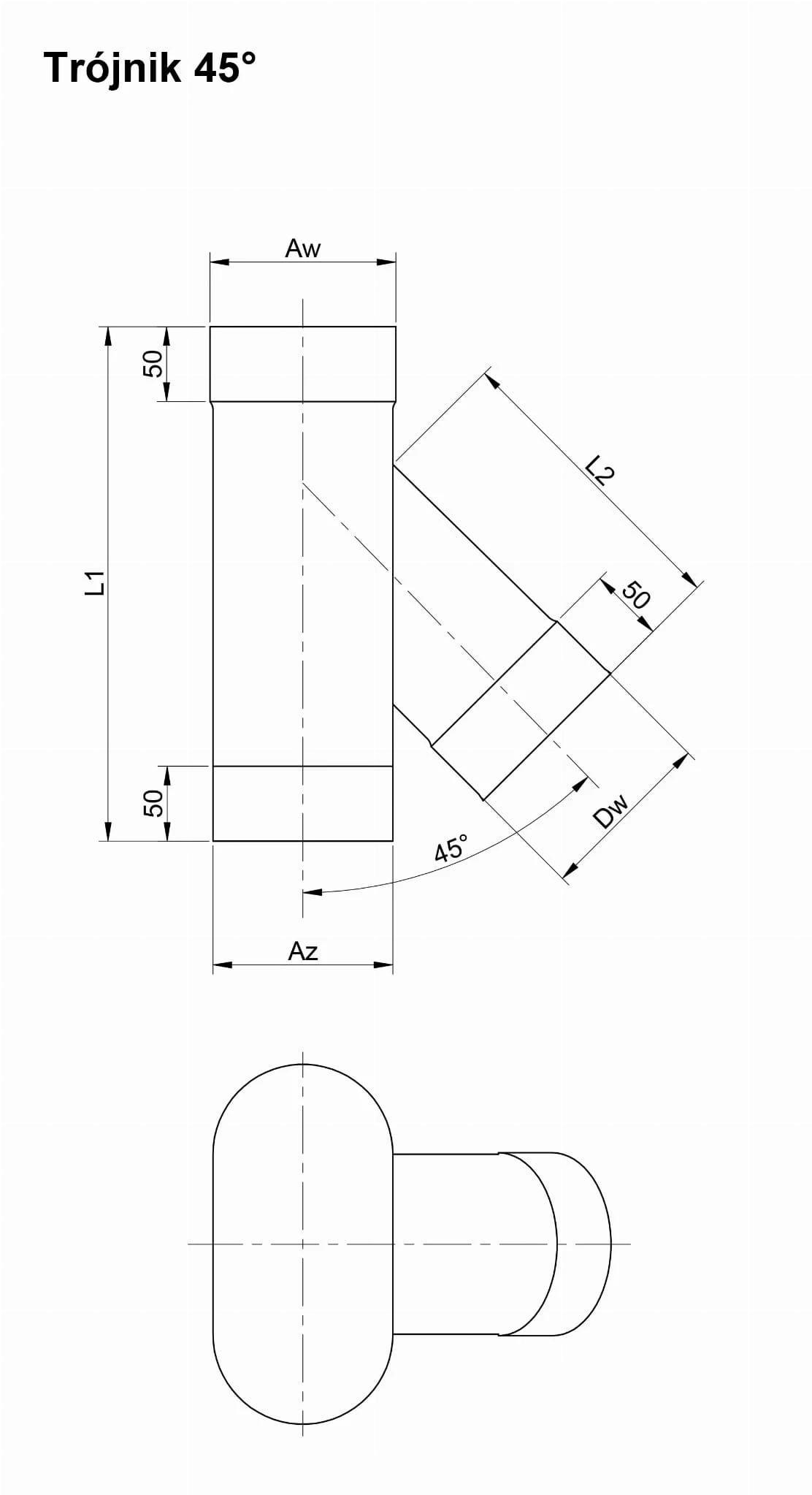
Trójnik 45° Owalny Żaroodporny

Dostępność: Dostępny w dużych ilościach
Wysyłka w: 48 godzin
Dostawa: Cena nie zawiera ewentualnych kosztów płatności sprawdź formy dostawy
Cena: 376,99 zł

Cena regularna:

376.99
Najniższa cena z 30 dni przed obniżką:
ilość szt.

towar niedostępny

dodaj do przechowalni
* - Pole wymagane
Ocena: 0
Producent: SolidnyKomin
Kod produktu: KOŻ14

Opis

Trójnik do łączenia wkładu kominowego z czopuchem pieca opalanego drewnem opałowym pod kątem 45 stopni. W ofercie: - trójnik owalny żaroodporny 90 stopni - trójnik owalny żaroodporny 45 stopni Wkłady kominowe owalne, podobnie jak jednościenne, przeznaczone są do odprowadzania spalin z urządzeń opalanych drewnem, jednakże dają możliwość dokładniejszego wypełnienia – jako wkład kominowy – przekroju komina ceramicznego czy murowanego. Jest to istotne przy dużych średnicach czopuchów kotłów, gdzie przekrój okrągły wkładu kominowego jest niewystarczający. Wykonywane są zarówno w gatunku 1.4404 wg DIN 17441 o grubości od 0,5 do 0,8 [mm], jak i 1.4828 wg DIN 17441 o grubości 1,0 [mm]. Elementy kominowe owalne z blach żaro i kwasoodpornych produkowane są w typoszeregu: 100/200, 120/240, 140/250, 120/200, 100/220 (istnieje też możliwość wykonania wkładów o innych wymiarach, jednakże należy pamiętać o zasadzie iż różnica pomiędzy długością krótszego i dłuższego boku musi wynosić minimum 50mm).

Dane techniczne

Producent Polski
System Jednościenny Owalny
Materiał Stal Żaroodporna
Gatunek Stali 1.4828
Grubość Stali 1 mm
Przeznaczenie Drewno
Rodzaj Połączenia Kielichowo
Spawanie Plazmowo
Maksymalna Temperatura 600° C

Koszty dostawy Cena nie zawiera ewentualnych kosztów płatności

Kraj wysyłki:
do góry
Sklep jest w trybie podglądu
Pokaż pełną wersję strony
;
Sklep internetowy Shoper Premium